当氧气之城遇上会呼吸的几何乐园
郑州,素有“绿城”之称,最新政府报告更是提出,预计到2035年,“绿城”将变森林“绿都”。顺应城市发展思路,在郑州新郑市南龙湖组团,有这样一个区域,区域内交通便利,距离郑州市区仅需30分钟车程。周边公共配套齐全,学校资源众多,休闲配套丰富,医疗资源成熟完善,区域优势十分明显。
△地理区位分析
郑州金地和樾春晓便坐落于此。好的幼儿园设计应该可以让孩子们充分释放天性,而孩子们天性热爱自然,我们所追求的“自然天成”与区域发展思路又不谋而合。
我们有意带给家长和孩子们一处可与外部环境自由交流的创智体验空间,促进亲子间的互动性与陪伴性,希望孩子们在家长的陪伴下能更好地探索自然的奥秘。
郑州,本就是一座自然天成的“氧气之城”,而我们则想要建造一座会“呼吸”的空间,友好的引入幼儿园周边的自然景观以及充沛的阳光。随光影变换,感受自然赋予空间的无限魅力。
项目秉承“简约抽象、亲近自然”的设计理念,以大自然的蜂巢形态为基础,进行抽象提取、变形、重构,衍生出八边形母题建筑语言系统。以简约的体量实现丰富的功能,八边形的结构在满足复杂功能的同时,又形成了相对独立且依存共生的空间形态。
△概念分析示意图
建筑主体主要分为三层,以近人尺度的廊下空间为引,将更多功能空间置于二层和三层。在营造具有参与感的新场景的同时,简洁大方的八边形建筑主体,又极大地提高了项目的昭示性。
△生成过程分析图
设计以统一的建造语言,在体块虚实穿插间强调空间的趣味性。结合场地中建筑之间的对位关系,廊下空间延续了八边形的空间组织方式与建筑结构,被重新解构的廊下空间以丰富情景化的体验给空间带来了更多可能性。
遵循建筑、景观、室内一体化的设计原则。在中庭的设计中,我们试图创造一个乐享自然与生活的花园场景,以人为设计尺度,营造自然诗意的舒适空间。
△建筑、景观、室内空间的边界消弭
并以中庭作为中心,试图消弭空间界限,实现室内外空间的共融共生。为幼儿园提供一个下沉的户外课堂空间的同时,也为孩子们创造一处可释放天性,寻找独特自我的成长环境。
△户外儿童乐园
同时,在曲面U型玻璃板的围合演绎下,若隐若现的空间场景,也在一定程度上淡化了建筑内外空间的界限,在建筑序列中可以自然过渡、连接,使两者成为一个有机的整体,强调空间趣味体验的完整性。
在立面设计策略中,我们延续了亲近自然的设计理念,在简约克制线条勾勒的造型中,选择以镂空的手法增加立面“呼吸感”。在虚与实、光与影的演绎下,也让立面整体更显轻盈通透。
△材料索引图
在立面材料的选择上我们反复斟酌,最终选择了大面积竹木与细节金属铝板的组合方式,竹木天然的纹理简约高级,自带温润近人的属性,给人一种回归自然、清新淡雅的感觉,使得自然的氛围得以延续并与之相融;金属铝板在细节处的点缀,在提升整体精致度的同时,更为项目增添了一份关于未来的想象。
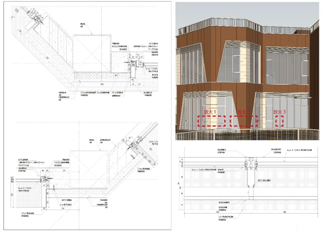
△塔楼梯形窗节点
同时我们也十分注重对生态环境的保护,为避免���成对环境的二次污染,其中运用最多的竹木,作为高耐户外材料,是采用速生环保型材料,将其重组即可提高利用率。同时也可最大程度降低对幼儿园使用者,尤其是小孩子的健康隐患。
△竹木节点
主创设计师
郁俞
许力纯
郑州金地和樾春晓
项目业主:金地
项目地点:郑州市新郑市
幼儿园建筑面积:1084.92㎡
建筑设计:致逸设计
甲方设计团队:杨涛、介巍、唐晓笙、胡巍、蔡苗苗
建筑设计团队:郁俞、许力纯、肖洁、陆文怡
施工图设计:天友设计
景观设计:水石设计
室内设计:墨设设计
照明设计:譜迪灯光设计
幕墙设计:弗思特幕墙设计
建筑摄影:明境建筑摄影
*免责: 此文仅作为设计企业宣传推送,设计资料仅作学术交流使用,不涉及商业营销和要约,亦不代表该项目相关企业的任何承诺。
上海市长宁区新华路668号
商业联系: liyumeng@geedesign.cn
人事联系: hr@geedesign.cn




































