城市记忆的大事簿
	
宁波万科槐树路256号
“在其瞬间整体性的再生之际,街道成为了我们记忆的大事簿,它成为了城市文化和场所得以持续延承的保护者。”
——斯皮罗•科斯托夫
微缩城市
昔日的西方人得以窥见古老中国开埠与世界贸易的发端,彼时三江口北岸商贾繁忙,百年沉浮;如今槐树依旧,基督教堂、洋房、崇德女校等象征着中西文化交融的建筑遗迹犹存于世,目睹城市的过往,也等待新生。
	
△宁波三江口,槐树路一侧古渡口
槐树路,一条因百年槐树得名的街道,其所在宁波三江口岸的重要位置毗邻着中国最早的外滩,在中国近代城市发展史和贸易史上都留下了浓墨重彩的一笔。城市更新下的身份转换,历史文脉与人文意蕴又将如何延续。
	
	
△项目地理区位与周边环境
适逢万科进入宁波的重要时间点,秉持与城市共同成长的理念,业主希冀以槐树路256号为样本,助力城市更新升级。通过国际招标,我们与多家知名设计企业同台竞技,经过几轮方案优化,最终赢得这一意义深远的项目。
	
△前期多种方案推敲过程
基地边界范围内局促紧凑的特点起初为设计带来难题,如果将其转换成空间社会学的视角,“小”通常又是最有效率的,城市的中心机会也往往是向着相对小的空间展开的。
	
△总体鸟瞰效果图
复合型开放社区
在非传统居住模式的引导下,我们在设计之初便开始寻求全新的复合型社区生态与建设模型,以求高效聚合有生命的、丰富和连续的街道生活,回应曾在工业化的进程和功能机械划分中被漠视的大众的情感需求。
	
△方案概念草图
在90m限高以及基地内9m公共步道限宽的制约下,经过用地条件、日照计算边界条件等分析过后,总体设计最终采取对称规划布局,涵盖居住、办公、商业、酒店、街区配套等多元业态,打造具有仪式感的高品质城市空间氛围。
	
△营造多元复合型社区,并回应城市界面
同时,该项目规划设计立足城市设计的维度,着眼于滨江带的整体趋势,顺应城市肌理关系,保证城市规划的整体性。同时优化布局建筑节点来丰富城市天际线,无缝连接城市空间。
	
	
	
	
△过程方案模型推敲
兼容并蓄的诗意建筑
从城市更新角度来看,“尊重与呼应”成为基地内的艺术馆设计的必然趋势。但面对这样一块不规则不方正的基地,以及场地内已有的古树,如何将自然与人工要素有机结合,不破坏原有的人文风貌?如何在有限的条件下,有效的融合建筑的功能布局与人流动线?
	
△艺术馆的用地红线范围示意
	
	
△艺术馆设计草图
承袭卡洛·斯卡帕的建筑与艺术哲学,宁波槐树路256号的当代艺术馆充分尊重场地现有的自然环境,试图唤醒旧有的城市文脉与历史印记,更是对东西方文化兼容并蓄的城市人文的礼赞。
	
△设计方案生成过程
	
	
设计主创在事先并未受到强制规定的前提下,提出将最大化的尊重场地现有的自然要素,保留区域内具有年代感的“老槐树“,同时借景渗透,融合自然之境。
	
	
对于沿江岸的天际线与城市界面,我们也进行了多种考量:试图将底层空间归还给城市;公共空间尽可能向城市敞开;利用二层建筑最大化景观的视线……最终,我们模拟到访者体验视角,沿滨江带以曲折的人行路径,布局各大功能区,将中心庭院与滨江步道有机渗透,步移景异。
	
△设计方案推演过程
	
	
我们不仅从体验者角度出发,同时密切关注城市自然因子,考量室内外景观视线的对景关系。在设计之初便坚持将建筑、室内、景观一体化的理念,“融万物于此境”。
	
	
	
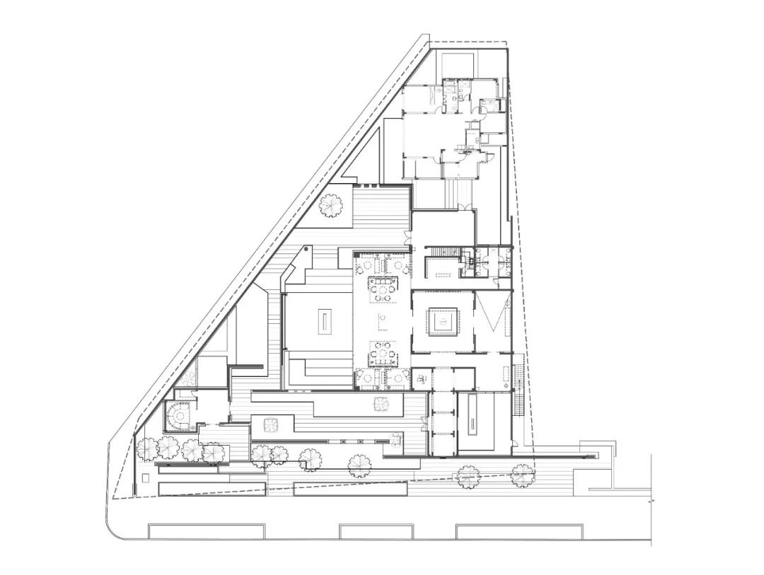
△平面图
	
	
	
	
各屋顶檐口下部均设置有滴水线,防止吊顶挂污。干挂预制混凝土板采用密缝形式,使得景墙效果整齐划一。
	
△檐口构造细部详图
	
△入户门节点详图
	
景墙压顶采用铝板、铝合金装饰线条组合的形式,滴水线的设计保证景墙整洁不挂污,同时使整体线条更平整。
	
	
受到老外滩与三江口的历史人文的浸润,时隔百年基地周边仍然保留有法领馆与教堂等洋房,其中最具有象征性的圆拱,已然成为文化符号留存至今。我们将蕴含历史印记的传统符号抽象化,运用现代建筑的表达方式,献礼这座城市的精英智士,诠释精致典雅的生活方式。
	
	
△圆拱门分缝细节对比研究
	
	
	
水波和光线,纯净的墙体,赋有象征意义的圆形拱券,树影中的金色线条……以现代主义建筑表达方式使不同材质之间链接,作为对场地的自然人文环境的关照,延伸场所中抽象的时间感,回望城市的荣光。
	
	
△项目建设过程现场
基地上的几株老槐树是来自历史的证物,我们自觉地将其保留并提取圆拱的建筑语汇,使该艺术馆成为一个有生命力的城市文化符号。这里既是建筑空间的入口,也是城市更新下江岸模式的新出口……
	
	
上海市长宁区新华路668号
商业联系: liyumeng@geedesign.cn
人事联系: hr@geedesign.cn