在看与被看间,找寻城市中的自然之境
	
苏州合颂兰亭花园
苏州.昆山玉湖/ 2021.04
	
古人常云,仁者乐山,智者乐水。择水而居似古老般的智慧流传至今,如今的水元素已然成为处理现代建筑虚实关系的重要因素,也启迪着设计者对建筑的艺术构思。与此同时,在昆山玉湖旁,一座受到启示的湖居理想空间,正在等待一次意外的相遇,展开一个惊喜的故事,治愈被困守的都市人。
	
	
	
	
场所之境 “镜”观其变
场地&策略
	
△鸟瞰实景图
	
“枯藤老树昏鸦,小桥流水人家”,一千个人心中有一千个江南。而本案位于的昆州,虽属苏州,又拥有悠久而灿烂的历史文化,却是那个最低调富有又不喧哗的一个。城市之境,大有静观其变的成熟与稳重。
	
△地理区位分析
	
苏州合颂兰亭花园项目地处昆山城西玉湖版块,滨临约500亩城市生态湖泊——玉湖,与玉湖公园遥相对望,是森林公园向北延伸生态绿廊上的重要组团,与周边的景观资源形成了难得的城市湿地生态圈。我们希望在这片可以“自由呼吸”的场地上,延续城市基因,充分利用其周边的水环境,打造一个“镜”观其变的新场域。
	
△地理区位生态因素分析©源于网络,归原作者所有
	
设计之初,面对场地多功能的需求,如何在有限的空间内实现功能与设计的统一?在功能排布上我们首要考虑配套公交场站的功能需求及对小区内部噪音影响,同时将南侧玉湖景观资源最大化汲取。
	
△前期体块推演过程分析
	
通过跨专业间的多次反复推敲,我们重新规整场地布局,在南北方向上,以架空的方式解决公交场站用地及功能流线的组织,并通过抬高的形体形成对一线玉湖景观资源的利用;在东西方向上,附楼形成的屏障阻碍了公交场站对小区内部的噪音影响,同时拉长项目的室内体验动线。
	
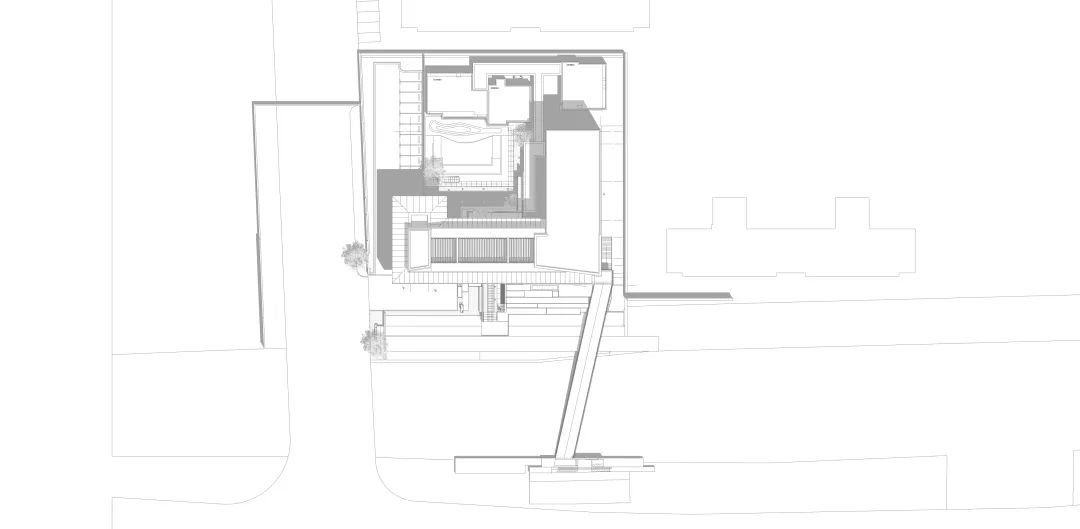
△总平图
	
	
建构一座“漂浮的岛屿”
设计故事解读
	
苏州合颂兰亭花园所追寻的不仅是临湖而居的栖身之所,更多的是从居住者的体验感受出发,营造一个独有的精神领地,就像瓦尔登湖之于梭罗一般,让空间、自然与人可以自由对话。
	
	
东西长231m,南北平均长约354m,本就不规则的用地现场,又存在自然高差,体验中心在设计之初面临的挑战:如何通过组织流线来解决空间的连接,有效的引入人流,对此我们进行了一系列推敲与演绎,让人群可顺其自然到达楼上观景。
	
△组织流线分析图
	
	
	
	
	
第一进:从城市走向连桥
	
在城市与建筑之间,通过一座弧形的浮桥将其连接。从城市道路缓缓而来,入口广场半石半水;水面跌落消失于地下,桥面逐渐升起,轻盈的建筑仿佛浮于水面。所见景象犹如一幅长长的画卷缓缓展开,空间原本简单,但伴随路径的变化,体验也愈加丰富起来。
	
△引导人流的桥面空间场景
	
△施工过程记录
	
	
	
	
第二进:水波氛围入口
	
入口作为建筑的过渡空间,是介乎内与外的第三域。为了使室内外的通透达到一种和谐的状态,实现景观的由外向内渗透,在入口处的材料选择上,我们大面积使用了水波纹板。
	
△入口多层次的场景塑造
	
△施工过程记录
	
“水波荡漾”的表面纹理,在不同的光照和光线的条件下,空间也会表现出不同的层次感,空间意境丰富,在与场地相互呼应的同时,又平衡了室内外视觉的统一。
	
△室内实景图片由高美空间设计提供,摄影师张静
	
	
	
	
第三进:架空庭院
	
钢筋水泥,高墙围城,使得建筑常常给人一种“厚重”的感觉,但在本案中为了让建筑与周围自然环境更好的对话互动,我们在设计中采用了架空庭院的设计手法,着重突出了建筑轻盈、通透的氛围感。
	
	
同时,利用墙体将空间分隔为有序的几个部分,穿梭游走间,可感受不同的空间氛围。
	
	
	
	
	
第四进:超尺度玻璃展馆
	
踏进展示馆,从内向外望我们似乎感受不到空间的界限。前后两进的玻璃盒子,通过体块的错动形成具有层次感的内部空间,无中生有,小中见大。
	
	
大面积的玻璃构造,在弱化空间隔断效果的同时,也让项目虽处闹市却也尽显通透豁达,营造出一种独有的建筑美感。
	
△立面生成节点&实景
	
室内与室外空间的过渡,无边界渗透感的设计初衷,用超尺度的玻璃以及大面积的波纹板吊顶进行对比,在与水光潋滟的湖面相呼应的同时,又让室内外自然相融,天空既在头上,也在脚下;窗外有景内有致。
	
	
苏州合颂兰亭花园展示馆通过简约极致的建筑语汇,将东方园林的布局立体微缩化,构建多维度的空间体验;其中的建筑以谦逊的姿态与自然对话,最大程度地保留场所的原生态景观;四季的轮回,生命的交替,人与人的交往,承载了我们精神中的家园。
	
△通透的玻璃盒子,在水中倒映着苍黝的影子
	
	
	
主创设计师
	
	
朱煜
林振方
邹钱
任建华
	
苏州合颂兰亭花园
	
项目业主:金地商置、合生创展
项目地点:苏州市昆山市玉湖北路
用地面积:76,423㎡
建筑面积:175,775㎡
建筑设计:致逸设计
甲方设计团队:孙亮、王顺霞、贾彩玉、赵超华、胡振坤、韩智强
建筑设计团队:朱煜、林振方、邹钱、任建华、梁胜、陈文俊、王喆、郭炜达、裴月璇、姜佳杰、夏天雨
施工图设计:苏州中海建筑设计有限公司
景观设计:上海罗朗行知景观设计规划有限公司
室内设计:高美(上海)空间设计咨询有限公司
幕墙设计:弗斯特建筑科技有限公司
泛光设计:上海徽之度照明科技有限公司
建筑摄影:纯点建筑摄影
	

上海市长宁区新华路668号
商业联系: liyumeng@geedesign.cn
人事联系: hr@geedesign.cn































