您的位置:新闻资讯-致逸现场
2019-10-11
苏州银城原溪
银城原溪的故事,要从一颗万众瞩目的树说起。
因为它,建筑、室内和景观设计公司紧密的结合在一起,也是因为它项目的建造过程才多了更多时光流转、生意盎然的乐趣。
图纸之上
项目位于苏州市姑苏区,距离“留园”1公里。不到1万平方米用地范围周边古树参天,弥漫着浓浓的历史文化名城和生活氛围。特殊的地理环境和深厚的文化底蕴,项目的设计也因此面临了不少的限制和挑战。
△项目周边环境及氛围
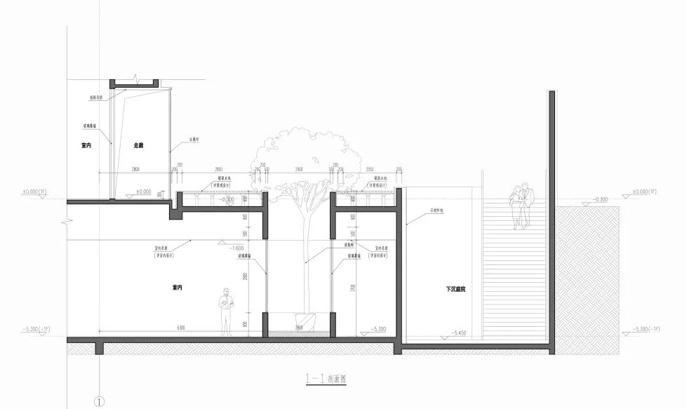
我们希望,整个空间氛围是灵动的、活泼的,与自然有交流的,所以在庭院的室内空间,我们设计出一处由室内延伸向外的“树池天井”。
“树池”既是空间往外的延伸,充满生机的绿植与厚重的石墙又形成一种美学对比。
“树池天井”方案草图
△“树池天井”剖面图
设想总是美好的,实施却充满了波折。
从空间层面来说,“树池天井”是建筑设计的一个构想;而恰恰它位于在室内,与室内设计的部分又产生重叠;如何种树,种什么样的树,又属于景观公司的专业范畴。
看似简单的种一颗树,到底哪一方来做?这种戏剧化的冲突也为项目的建成增添了一些趣味。
建筑与室内就“树池天井”的设想展开了头脑风暴。
△建筑和室内公司就“树池天井”的设计进行研究
△“树池天井”的施工过程
△“树池天井”实景
除了“树池天井”,庭院的石材的选择也是多方协作的结果。
为了表达“胸中有丘壑”的设计理念,我们选用天然石材作为庭院的墙面。但考虑到现场施工难度,景观公司对庭院的石材选择给出了专业的参考意见,最终,在多方协作下,下沉庭院的呈现的效果令人满意。
△原建筑方案中庭院的设计意向
△景观公司深化原方案中庭院的设计效果
△与景观公司沟通讨论
△设计师对不同石材进行选择
△庭院实景
做一个好的建筑设计方案,是每家设计公司都能达到的基本要求。但是否认真对待每一片工地,则体现了一家设计公司是否尊重自己的设计成果,是否对业主、对使用者负责任。
从脚手架阶段到示范区落地,再到现在大区将成,一张张未建成的照片、一次次的整改方案和现场整改,记录了各个阶段项目的变化,是设计师和施工团队辛苦工作的缩影,也是项目业主坚持高品质交付的初心。
△钢筋、水泥和脚手架的工地基调,劳动主力挖掘机
△示范区的雏形初现
△细节呈现
△设计效果初步呈现
大致的设计效果初步呈现,而在后期走访工地的过程中,对施工现场的细节落位也是设计师关注的重点。
项目logo标志的大小与颜色、门头铝板的拼合方式、合院采光窗的开合方式、楼号的大小、地库的颜色与灯光……
细微之处见真章,看似不起眼细节整改,却为项目的品质提升不小的高度。
修改前
修改后
△门头铝板拼接接口太宽,取消接口,尽量以整块铝板满铺密拼
方案一
方案二
△合院采光窗多方案比选
△合院采光窗施工实景
△楼牌尺寸设计建议
△楼牌实景
归期将至
如今,项目示范区庭院已落成,项目大区也进入施工收尾阶段。
在我们看来,设计方案的多次调整、三年漫长的工期、工地现场的反复勘察都不是问题。如何联合室内、景观、施工团队,予以项目极致的效果交付,才是在整个项目过程中,最重要的事。
△示范区实景
△大区施工已进入尾声
△大区施工细节
三年时间里,对于方案,我们进行了多次的优化;对于材料,为了达到最好的设计效果,我们与室内和景观公司争的面红耳赤;对于施工,多次走访现场,记录并出具整改报告,无数次的施工整改,我们的坚持和业主大力配合、对品质的高要求,才有了现在令人满意的成果。
三年过去,已竣工的项目示范区广受好评。如今,项目大区也即将建成。
2017.06-至今
“树池天井”的树长大了,业主们到了回家的时候。
邹钱
万志刚
金晓芸
苏州银城原溪
项目业主:银城国际 平安不动产
项目地点:苏州市姑苏区
占地面积:19533㎡
建筑面积:20509㎡
建筑设计:致逸设计
设计团队:万志刚,金晓芸,邹钱,黄纬,马剑,陈超琪
甲方设计团队:袁辉,金风丽,范凯,王洋,皋云帆
施工图设计:启迪设计集团
室内设计:董世建筑
景观设计:承迹景观
照明设计:RDI
幕墙设计:江苏合发集团
建筑摄影:存在建筑摄影,余周春雨
室内摄影:啊光
景观摄影:王宁
上海市长宁区武夷路155号A栋5楼
商业联系: liyumeng@geedesign.cn
人事联系: hr@geedesign.cn


















































