闻山而筑,都市烟火理想家
人类热爱自然是天性,但不应以放弃都市节奏与生活为代价。在成都万科君悦云台的生活设想中,设计师打破固有墅区生活认知,不只是打造了物理意义上的山居空间,更是将老成都的烟火诗意与文趣雅致融入生活场景的营造,在山水折叠的场域,还原最为质朴的本真生活。
山地院墅社区
徜徉于城市山野,逛走于街巷邻里
区位分析&规划设计
山居,发展至今源远流长,中国人对在东方意境下的山地墅居生活自古便是偏爱有加。但既要占据稀缺资源同时又不至于大隐于世的却少之又少。坐落于成都城南牧马山的成都万科君悦云台,却集空间尺度、资源占有、生活节奏等优势于一体,在消解封闭之“隐”的同时,将真正的安逸藏于繁华都市,体验可触摸的山居景观。
△地理区位分析图
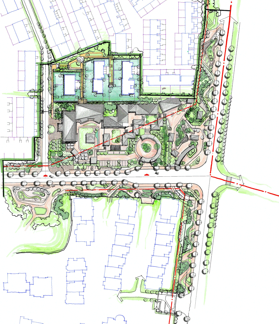
△鸟瞰手绘图
依山就势,君悦云台的总体设计提出了回归山居生活本质的理念,旨在营造具有丰富生活场景的山地墅居社区。面对绵延且富有层次的基地现状,设计充分借鉴传统造园空间格局,打造五进礼序院落,进退有据,在组团间、街角节点主动退让公共空间,形成“一环两轴五进院落”的布局,创造更友好的社区步行休憩体验的同时,又可重温儿时穿行于街巷的感动。同时,为了形成与山体形态的协调,设计巧妙地处理高差,将山景纳入园中。步移景异、移步换景,最大化利用现有资源,与自然共生。
△步移景异的街巷场景
△效果图过程版示意
生活化场景营造
山水折叠,日子掩映其中
示范区设计策略
面对天赋的自然生态,君悦云台示范区择址于丽景北路与森林大道交汇口,占据视野高地,极具昭示性的同时,又可流畅衔接整个社区。围绕“城市山居+东方人文”主题,将成都城市文化内核融入到设计中,依托入口大院与社区活动中心,结合公共绿地与口袋公园,打造区域未来重要的活动中心与交流场所。
△成都印象的抽象提取与应用
△山水折叠的人文山居
场景:川西市井记忆的现代重构
为营造出“开放-半开放-私密”自然畅通的体验,设计以随地形起伏的廊下灰空间串联起院落、社区活动中心、会所、艺展等空间,利用轴线转折、小品过度及导向处理等手法将各组建筑构成统一的整体,在丰富建筑与景观形态的同时,于天然中续写蜀地安逸自在的人文生活。
△示范区过程版草图方案
△示范区空间示意及流线分析
关注归家路径的场景塑造,通过营造丰富且具有老成都市井感特质的场景,融合传统礼序人文的设计语言,形成开合有序,错落有致的“游园”空间,从而承载、引导社群与圈层的构建。
△首层平面图
△生活化的场景营造
游走于园区内,一步一景,所到之处皆是“且向宽处行”的生活感悟,心有雅境,天然悦君。
这是一场人基于在地环境的二次创作。从城市到墅区,从繁华到静谧,设计不希望是一种割裂的状态。因此在场地的竖向处理上,我们充分利用其大高差,将山景纳入园区。
△层叠场域,借景远山
△剖透视
△引山景入园区
△现场记录
屋舍:成都隐逸格调的当代表达
四川古建筑总以环境为依托,将建筑融于自然环境。面对高差大、背山面水的场地,设计顺应地形,借鉴了四川传统吊脚楼的悬挑形式,依山而建,分层筑台,轻盈而灵巧的造型,很好的兼容了拙朴质感的日常与轻巧细节的品质。
△入口建筑形制生成过程示意
△转译四川传统屋舍的灵巧结构
△现场记录
建筑形制上,君悦云台摘取了众多传统川西民居的精髓。设计沿用传统的人形大坡檐屋顶制式,舒展标志性的姿态在与自然融为一体的同时,形成独特的社交氛围。山墙下与门廊相连,作为过渡空间在延伸室内空间的同时,串通连接起整个空间。
△建筑形制的提炼与生成
△剖透视
为呼应项目独特的场所精神,设计师提取川西传统民居的设计元素,保留了檐感与层叠感的同时对体块进行变形,融合现代几何的设计元素,创新传统川西建筑形制的同时,打造出充满昭示性的精神堡垒,寓意着生活的丰富层次,登高望远,游目骋怀。
△传统川西民居建筑形制的提取与转译(滑动查看更多)
建筑追随自然而演变,一梁一柱皆承载着岁月,设计关注建筑的每一个细节,因为那将保存时间留下的痕迹。
△节点分析
建筑整体给人一种传统“山水画”的淡雅之感,我们在材质的选择上主张运用以灰为主的中间色调,搭配暖色系的木纹格栅,与表面具有颗粒质感的石材,这组色调与材质的配合在场景之中相互制衡,保持着周边山水的和谐共生,质朴又不失韵味。
△材料索引
△模数化立面表达
△现场选材记录
蓬勃运转的城市、山水、建筑,构成了君悦云台的基本生活背景,一个充满烟火诗意的理想家园跃然眼前。在时间的作用下,山水与建筑在此寻得精神共鸣,使人于城市中也能兼得都市发展与山水之乐,我们希望人们即便身处时代中心,也能保有对自然的灵动感知。
主创设计师
叶笛
陈晨阳
江媛
周燕
成都万科君悦云台
项目业主:万科
项目地点:成都新津区
用地面积:198,879㎡
建筑面积:238,654㎡
建筑设计:致逸设计
住宅团队:潘翼、江媛、周燕、卞磊、刘豫、介文琼、吴波、邓辉、张海峰
示范区团队:陈晨阳、徐若晗、邹钱、解传基、陈明慎、刘豫、刘斌、杨威、凌尹嘉
景观设计:重庆纬图景观设计有限公司
室内设计:上海牧笛室内设计事务所
泛光设计:北京光湖普瑞照明设计有限公司
幕墙设计:重庆利嘉装饰工程有限公司
施工图设计:基准方中建筑设计股份有限公司
摄影:Prismlmage三棱镜、xf-photography
*免责: 此文仅作为设计企业宣传推送,设计资料仅作学术交流使用,不涉及商业营销和要约,亦不代表该项目相关企业的任何承诺。
上海市长宁区新华路668号
商业联系: liyumeng@geedesign.cn
人事联系: hr@geedesign.cn




















































