城市兴交付:社区公共化营造
都荟天地的基地位于南京南站,高铁枢纽站有一条长轴线,南北广场衔接新旧两个城区,两侧均为办公商业楼群。整个地块的状态略显拥挤局促,很难让人驻足停留。规划设计通过对于交通系统的研究,营造出契合功能的街区空间,让人们在步行环境里,还能找到适宜的闲暇角落。我们认为街区已经不仅仅是作为交通功能,更影响人们使用感受的是从站点到城市再到社区的连接,其中最后500米的归家路线的体验设计值得我们关注。
△片区总体设计概念与效果图
©NIKKEN GROUP
我们的规划设计延续了城市总体上位规划中的“城市绿谷”概念,主张城市界面与街道的公共空间的节奏变化。中间是一条步行加车行的动线,这条动线要与高铁、地铁的人流动线形成接驳关系,把人流引进这片商业街区。
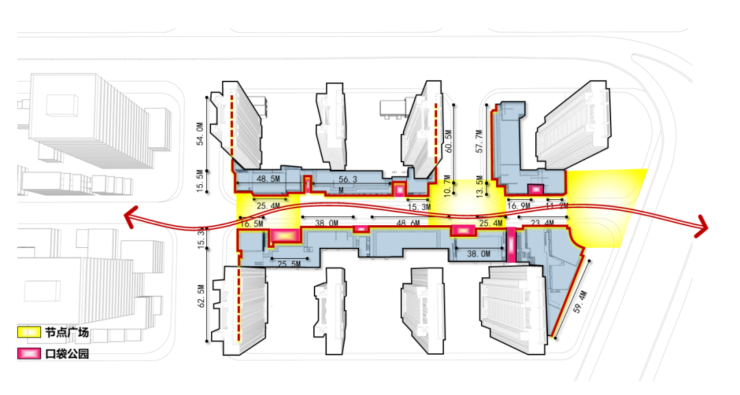
△空间布局与总平面的关系
整体空间的主体价值是呈现一个开放式社区的职能,以商业做底、粘合所有商业做大底盘,再将社区住宅混合进来。我们结合社区里的小广场和线性空间,放置了多个口袋公园,这样商业界面呈现较为复杂灵动的状态,形成一个比较丰富的社区空间与城市界面。
△商业与住宅混合的街区实景
△沿街商业施工阶段的现场记录
从城市尺度层面分析,我们植入三个重要节点:其一是入口,我们把商业界面进一步缩短,让它形成更加丰富的空间;其二是五个口袋公园,公园穿插在社区里面,跟小区的入口形成一个联动与呼应;其三是商业面向城市的剖面分析,把标志性与日常性的商业建筑进行组合,以此形成步道、车道、商业、口袋公园乃至到整个社区的自然过渡,而口袋公园的错动关系,让城市的界面始终具有变化的弹性,形成一种适宜的社区步行体验感。
△商业街区尺度分析与整体格局鸟瞰
△商业街区实景
△商业街区施工现场记录
传统商业的逻辑里是要做两层,但这里并没有办法做出两层沿街商业的量,所以每块组团都有个商业内院,而住宅又是相对独立的,于是产生了延展商业的折线空间。因此,它其实是多个小块空间构成,但它们之间并不是一个全部贯通的状态,彼此在公共和私密之间有一些疏离感,而口袋公园具备了消解与联动的职能,所有楼栋底层都是一个开放的状态。
△与商业街区衔接的住区空间
整个过程是一个平面与剖面的解题过程,在开放与共享的大主题下,保持一种适度的公共与私密。与此同时,住宅立面的设计也延续整体的大框架线条感,在底层商业的逻辑之上寻求住宅产品的可适度,强化人视角度的场景体验性。为了更好的将最后500m的归家社区感更加人性化,我们在底层入户材料选择上尤为重视,大面积石材配合金属铝板勾边,现代纯粹的精致在此处体现。
△住区建筑细节实景
△住区施工现场记录
在做项目的过程中,通常会面对多种利益体的诸多限制,貌似对设计师存有一种消极因素,一个好的项目的产生则是“天时地利人和”兼备,我们始终相信:设计就是需要不断的观察与学习,不断积累专业与作品,苦中寻乐,或许就会碰到偶然中的幸运。
主创设计师
李逸舒
李国亮
高心娴
周毅君
都荟天地
项目业主: 万科
项目地点: 南京市南站
用地面积: 44,318㎡
建筑面积: 184,047㎡
建筑设计: 致逸设计
甲方设计团队: 金宏、甘若凡、冯盛华、王丹
建筑设计团队: 李逸舒、李国亮、高心娴、周毅君、刘孟杰、罗忠亮
施工图设计: 长江都市
景观设计: RDA景观
建筑摄影: ZOOM琢墨摄影工作室、行知影像、纯点建筑摄影
*免责: 此文仅作为设计企业宣传推送,设计资料仅作学术交流使用,不涉及商业营销和要约,亦不代表该项目相关企业的任何承诺。
上海市长宁区新华路668号
商业联系: liyumeng@geedesign.cn
人事联系: hr@geedesign.cn



































