融合共生: 城市综合住区设计策略
城市核心住区,从传统单一、内向私有的功能模块,到现如今复合业态、多重流线、边界交错的综合社区,对于城市土地资源的最大化利用逐渐转向城市多重命题的解读。城市空间塑造不仅需要开发商的运营、建筑师的设计,最终都将回归使用者的介入参与,城市公共空间的千篇一律、街巷生活的缺失、邻里场景的密而不疏,这些话题似乎亟待解决。城市核心综合住区应立足城市思维,尊重本地历史文脉,融合城市多元业态的景象,构建出属于当代的超级底盘,并顺应自然融入日常。
城市的理想居住单元也许不只有一种模式,但在宁波槐树路256号历时五载的建筑实践中,从场景营造到建筑细节的雕琢,建筑师们共同经历了无数次的纠错与试验,在与甲方及合作方的共同坚守下,试图探索出适用于当下的城市高端综合住区的创新策略。
回归到城市原点的繁华地带,地处宁波三江口岸的城市封面所在,这里不仅链接城市的过往荣光,仍是具有国际化视野的兴起之地。槐树路一带更拥有着沿江景观的丰富资源,见证着城市新旧融合的生活方式。当建筑师面对如此珍稀的土地,我们认为这块土地不应该私有资源最大化,与其相反,立足城市设计的高度,作为焕新生活方式的重要载体,助推居住与公共生活的融合,试图保留场所精神的同时,关注公共生活的价值,激发自然与人的社会属性之间的互动,创造一种高阶的城市烟火气。
△城市区位分析
△老外滩历史图景
△宁波三江口日常生活图景
在设计之初,我们便在非传统居住模式下寻求全新的社区生态与建设模式,将公共开放的底层空间还给城市,将最有活力的城市界面作为重要媒介,既营造出连续丰富的城市街道面貌,又从整体性上形成顺应沿江岸的城市天际线。
△功能形体研究
△整体鸟瞰与沿街实景
△城市形态天际线分析与实景对比
从开发思维到城市思维,万科将复合、多元、开放的融合方式在此展开。槐树路256号汲取超级底盘的先进理念,将技术、形态与策略融为一体,涵盖居住、办公、商业、酒店、街区配套等多元业态有机结合,补充城市要素,多维度激活不同形式的生活方式。
△首层底盘功能落位
规划设计需要协同多种功能的需求,将底层空间更大向度的打开,创造出融于日常形态的生活氛围。沿江商业充分利用具有广度的延展面形成错落有序的口袋空间,同时建筑呈现立体式退让关系,与河岸形成友好共生的互动形象。
设计基于生活化的场景进行多元功能空间的落位,以空间服务为内核,作为生活图景的容器,包罗万象。
随着城市生活的交融复合程度逐渐加强,居住以外的生活场景尤为重要,未来的居住单元理应根据不同功能营造不同程度的开放格局,打开城市与社区的边界,拥抱高阶烟火气。因此建筑师需要分析城市行为在归家路径上的影响程度,内与外的界面关联与空间设计,能更好的促进人们自发行为的产生,与城市中的要素形成渗透。同时,住区架空层的运用将渗透的理念贯彻始终,设计打破建筑、室内、景观的边界,互相交融成为一体,为居住者提供更自然惬意的邻里空间。
△体量生成分析-复合多样要素
△项目整体横向剖透视
△链接多种业态的Hub Space空间
△从沿江边界到半开放空间再到社区庭院
在归家最后的3km路径内,国际餐厅、健身休闲、娱乐购物、美术馆等应有尽有,沿着槐树路街道面展开,“槐STAGE”一个具有商业活力氛围的场所应运而生。形似游艇船尾,错落有致的露台提供户外休闲空间,融合餐饮、零售、时尚、健身会所、泳池、教育等多元业态,槐树下漫步经过的人群都能在此处驻足休闲,从不同视角观赏江景。同时可以享受到雅诗阁公寓的奢想服务,将沿江精致尽收眼底,以都市会客厅的空间创想未来生活方式。
△槐STAGE与雅诗阁酒店公寓的建筑实景
边界具有模糊性,由动到静的不突兀的过渡,需要不同空间形式的自然转变。从喧闹的城市进入到静谧的居住区,其中的半开放界面则为整个场所提供了一处渗透空间,也能作为良好的屏障,自然链接又不失保护作用,楼下的烟火气与居住的私密感互不干扰,称之为“Hub Space”。同样的,这里也承载了多重流线,通往酒店、会所、公寓、住区的动线汇聚同一个空间,但其落客区却各自独立设置,互不干扰,有效的形成了从开放到私密的过渡界面。
△底盘研究-多重流线的组织
△雅诗阁公寓入口实景
△归家大堂入口实景
△地下车库入口实景
正是在如此超级底盘的助推下,槐树路256号建构起独树一帜的城市超级坐标,以“复合的内容化空间”、“消融的边界”以及“多核并联的流线”,拥抱高阶的城市烟火气,打开了城市与社区的边界,筑起宁波城市更具时代品格的封面图腾。
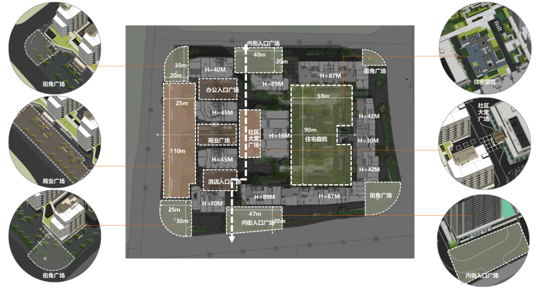
在整体空间格局的尺度设计上,生活尺度成为了不可或缺的标准衡量方式。无论是广场、庭院甚至是建筑的缝隙尺寸,设计均避免空洞乏味的尺度感,而是聚焦生活场景,营造合理化的步移景异,如挑檐、架空层、抬高的地面、格栅绿植等。
△广场空间剖透视
△首层总平面
△庭园与广场空间的布局
在整体建筑的呈现中,设计强调“酒店化”的处理方式,意指对细节的洞察和刻画尤为重视。公共属性的建筑表达,本身便具有公建化特征,同时充分利用幕墙体系的疏密有致及网格化构架,结合金属、格栅与玻璃元素的协调统筹,使得酒店化细致入微的建筑表达与景观交织,共创沉浸式的场所体验。
△开放性的街角广场空间
交融与睦邻,庭园串联会客生活。从向外开放的公共空间步入居住领域,设计渐渐回归静谧又不失生趣的理念,在整体的景观格局设计中,从东方传统的造园手法中汲取灵魂,注入到现代化的空间营造之中,城市广场串联内部庭园,通过开敞大水面、悬挑大廊架以及渐进式构图,增强画面透视感,在有限的中庭空间营造大景深的静谧场景。与其说品质是社区的保障,不如说将更多的阳光、绿化与滨水空间还给居住者与体验者,才能拥有更长久的生活品质。
△城市广场与内部庭院串联
△社区内部庭园的空间实景
延续城市蕴藏的深厚文脉,吸纳当代鲜活的城市图景,正是槐树路256号这块土地所赋予的最重要的启示。尊重过往、放眼未来,以一种从容有序的姿态叙述生活,仍是一种正当时的城市更新。由此我们将社区的营造作为精神内核的一种转译,挖掘老外滩的城市记忆,将其最具代表性的符号元素进行抽象提炼,从最初的圆拱廊道到会所圆拱窗框形式的传达,以现代主义建筑表达方式使不同材质之间链接,作为对场地的自然人文环境的关照,延伸场所中抽象的时间感。
△项目周边古建筑的老照片
△拱形元素的文脉提取与应用
△艺术馆实景-对于场所精神的尊重与再生创作
追忆宁波市的港口文明,商办空间直面江景,立面形态由此作为意向,以游艇为概念进行提取,用简洁而流畅的线条,形成跌落灵动的城市界面,同时也顺应了城市肌理,打造通透的视线通廊。社区立面延续横向线条的张力,充分与公寓进行协同设计,共同塑造别样的城市界面。
△游艇意向提取,生成立面语汇
△沿江视角的立面草图与实景对比
着眼于城市,又不放过城市的每一个细节。设计立足于城市思维,不仅从体验者角度出发,将底层空间归还给城市;同时还密切关注城市的自然形态,渗透到社区公共空间的营造,实现从中心庭院到滨江步道的情感递进,最终探索出一条综合住区的更新之路。
主创设计师
叶笛
潘翼
宁波万科槐树路256号
项目业主:宁波万科
项目地点:宁波市江北区
用地面积:29,516㎡
建筑面积:82,600㎡
建筑规划设计:致逸设计
设计团队:潘翼、樊松峰、李少洪、陈晨阳、徐若晗、解虎、邓辉、张海峰、陈起、叶海挺、吕慧芳、罗静雯、缪庚雄、吴波、陈明慎、刘聪、程磊、杨健、操琰、米奇、闫万荣
商业顾问:JHD建筑
景观设计:北京创翌善策景观设计有限公司
室内设计:牧笛设计(住宅)、香港郑中设计事务所(酒店)
施工图设计:宁波市民用建筑设计研究院有限公司
幕墙设计:弗思特建筑科技有限公司
建筑摄影:筑相制片、行知摄影、沈忠海
视频剪辑:筑相制片
*免责: 此文仅作为设计企业宣传推送,设计资料仅作学术交流使用,不涉及商业营销和要约,亦不代表该项目相关企业的任何承诺。
上海市长宁区新华路668号
商业联系: liyumeng@geedesign.cn
人事联系: hr@geedesign.cn




























































